







De vânzare teren construibil în zona centrală a Bucureștiului – Proiect urbanistic în extinderea centrului vechi, dar în afacerea zonei protejateLocație excelentă, la doar 5 minute de metrou Piața Muncii, pe Strada Orzari, în zona Decebal – Călărași – Agricultori – Țepeș Vodă.
Terenul are 445 mp și oferă două propuneri arhitecturale conform PUG București, ambele având în vedere un concept de
SPAȚIU VERDE URBAN:
Proiect Gradina Urbana„GREEN ” Terasa 125 de locuri:
Detalii arhitecturale atașate
Pe intreaga suprafata a terenului se amenajează spații productie, bar si spații de relaxare si socializare
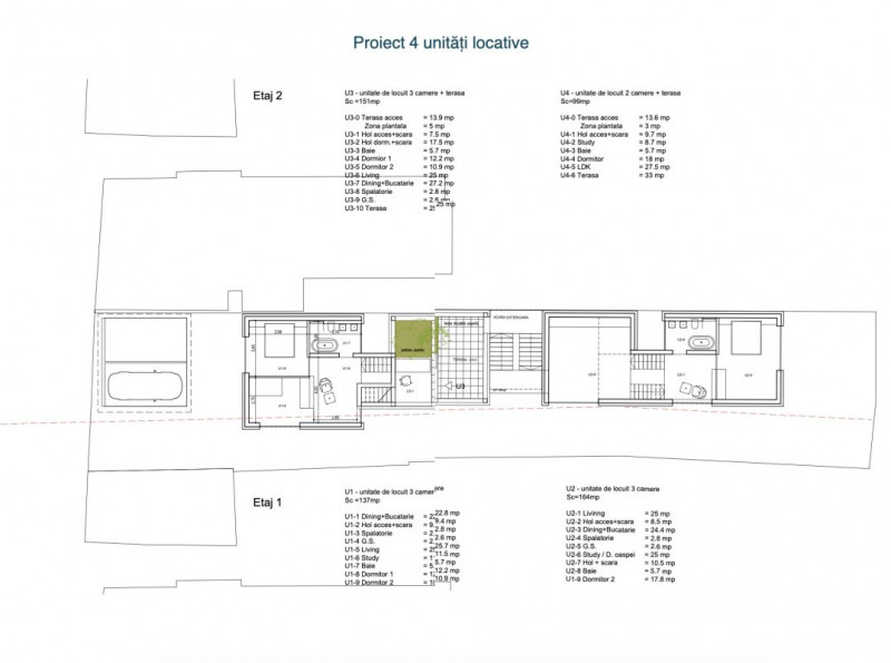
Proiect 4 unități locative, P+2E+M:
S teren = 463(443)mp
4 unități de locuințe cu grădini incluse, 3 camere fiecare+ loc de parcare
Sc parter = 206mp POT = 44.5% CUT = 1.45
CUT max P+2E = 1.3 CUT max P+2E+M = 1.57 POTmax.= 45%
Detalii arhitecturale atașate
Detalii suplimentare:Pe teren se află 2 case de câte 2 camere fiecare, un atelier și un garaj, toate fiind demolabile. Exista aviz de demolare aprobat atasat. Latura stângă a terenului este la calcan cu un bloc D+P+2. Deschiderea la stradă este de 9 ml, iar latura adâncă este de 39 ml.
Beneficii locație:Zona este îmbogățită de cafenele și zone pietonale atractive, ideale pentru plimbări sau pentru a savura o cafea pe terasele din apropiere. Parcarea subterană care redefinește zona este la doar 5 minute de mers pe jos. De asemenea, în apropiere se află Parcul Național, Complexul Sportiv Național Lia Manoliu, Arena Națională și multe facilități de transport- metrou, autobuz, tramvai, troleibuz.
Facilități educaționale:La doar 10 minute distanță, găsiți licee și școli renumite: Colegiul Național „Mihai Viteazul”, Liceul „Iulia Hasdeu”, Colegiul Național „Emil Racoviță” (liceu sportiv) și altele.
Utilități disponibile:Curent electric, apă, canalizare, gaz, CATV, fibră optică.
Cafenelele si zonele pietonale incercuiesc si infrumuseteaza zona atat pentru doritorii de plimbari cat si pentru doritorii de savurat cafele si ceiuri la terase dichisite atat pe bulevardul Decebal cat si rasfirate prin cartier. Parcarea subterana ce contureaza noua infatisare a zonei - se afla doar la 5 minute de mers pe jos de locatie.
In plus, la 10-15 minute de mers se afla parcul National (fostul 23 August), Complexul Sportiv Naţional Lia Manoliu, Arena Nationala, iar la 10 minute, pe Agricultori - Liceul international IBSB cu predare in lb engleza, SC Gen 85 Vasile Bunescu, la fel si Colegiul National Mihai Viteazul, Iulia Hasdeu sau Colegiul National Emil Racovita (liceul sportiv).
Pentru mai multe detalii nu ezitati sa ma contactati!